


Aktuelles und Presse 2019
Aus dem Gemeinderat - Gau-Odernheim soll erste pestizidfreie Gemeinde im Landkreis werden9.12.2019
Unter anderem mit einem Antrag der SPD-Fraktion “pestizidfreie Gemeinde” zu werden, hatte sich der Gau-Odernheimer Gemeinderat bei seiner letzten Sitzung des laufenden Jahres zu beschäftigen. Zunächst bemängelte bei der Einwohnerfragestunde ein Bürger, dass die Wirtschaftswege immer wieder für kommerzielle Erdtransporte genutzt würden und dadurch einem erheblichen Verscheiß ohne geldwerte Gegenleistung unterliegen. Hier verwies Ortsbürgermeister Heiner Illing auf einen späteren Tagesordnungspunkt, bei dem dies ein Diskussionspunkt sei.
Bei der letzten Sitzung wurden folgende nichtöffentliche Beschlüsse gefasst: ein Stellplatzablösevertrag mit Antrag zur Umnutzung einer Scheune in Wohnraum wurde nicht genehmigt, da der Rat nicht genügend weiteren Parkraum gegeben sah. Dies wurde in der Zwischenzeit von der Kreisverwaltung gekippt, da man dort gegenteiliger Meinung ist. Eine Bauvoranfrage in Gau-Köngernheim wurde ebenso genehmigt, wie der Bauantrag eines Mehrfamilienwohnhauses mit Tiefgarage.
Seit der letzten Ratssitzung wurde über eine Eilentscheidung die Fa. Waldmann beauftragt für 2.204€ die Untersuchungs-Querriegel in der Kirchgasse für die Wintermonate mit einer Schwarzdecke zu verschließen.
Vom Rechnungsprüfungsausschuss wurde Georg Müller für die nächsten 5 Jahre zum Vorsitzenden gewählt. Bei seiner Jahresprüfung für 2018 konnte der Ausschuss sowohl der VG-Verwaltung, als auch der Ortsspitze eine einwandfreie Finanzverwaltung attestieren und der Rat erteilte die Entlastung von Bürgermeistern und Beigeordneten. In 2018 war der Ergebnishaushalt nicht ausgeglichen, jedoch schloss der zahlungswirksame Finanzhaushalt mit einem positiven Ergebnis von 75.000€ ab und war somit ausgeglichen.
Im anschließenden Tagesordnungspunkt Wirtschaftswegesatzung wurde bei einer Enthaltung (alle anderen Beschlüsse waren einstimmig) eine neue Wegesatzung für die Feldwege beschlossen. Diese Satzung muss noch in einem Unterpunkt von der Verwaltung auf Rechtssicherheit geprüft werden und versetzt in Zukunft die Gemeinde in die Lage z.B. kommerzielle Erdabfuhren zu verbieten oder mit Gebühren zu belegen.
Für die Friedhöfe in Gau-Odernheim und Gau-Köngernheim werden je 3 Natursteinstelen aufgestellt, in denen in 2 Doppelreihen die Namen der zukünftigen Baumbestatteten erscheinen. Den Zuschlag hierzu erhielt die Fa. Regenstein für insgesamt 3.198€.
Zusätzlich erhielt die Fa. Waldmann den Auftrag in Gau-Odernheim im Gräberfeld “C” 9 zusätzliche Urnengräber für 1.109€ vorzubereiten.
Im Rahmen der Nachpflanzungen aufgrund Baumfällungen im Ortsbereich müssen 21 Bäume nachgepflanzt werden. Die Kosten hierfür incl. 3-Jähriger Pflege würden sich nach Schätzung der VG auf ca. 26.000€ belaufen. Hier beschloss der Rat, dass für ca. die Hälfte der Kosten nur die Bäume gepflanzt werden sollen und die Pflege durch die Gemeindearbeiter übernommen wird. Das gleiche gilt für 4 Bäume an der Bahnstraße in Richtung Biebelnheim, die im Rahmen von Ausgleichspflanzungen noch gesetzt werden müssen. Beide Maßnahmen werden nun von der VG ausgeschrieben.
Dankend nimmt der Rat die Spende der Landfrauen für 2 Erwachsenen-Outdoor-Fitnessgeräten an. In der Diskussion stellte sich heraus, dass er von den Landfrauen angedachte Aufstellungsplatz am Spielgelände an der Petersberghalle die richtige Wahl darstellt.
Einen größeren Umfang nahm die Diskussion zum Antrag der SPD-Fraktion an, dass Gau-Odernheim in Zukunft als “pestizidfreie Gemeinde” agieren soll. Hierzu wird auf den Einsatz von Pflanzenschutzmitteln auf öffentlichen Flächen weitgehend verzichtet. Zugleich sollen über Aufklärungskampagnen Grundstücks- und Garteneigentümer, sowie Landwirte ermuntert werden, sich diesem Beispiel anzuschließen und Gau-Odernheim so zu einem “insektenfreundlicheren” Ort zu machen. Dies hat natürlich zur Folge, dass z.B. Wege auf Friedhöfen in Zukunft nicht mehr so “sauber” = unkrautfrei sind.
Zum Schluss teilte Bürgermeister Heiner Illing noch mit, dass am 18. Januar der Bürgerempfang stattfindet und er sich über Nennung potentiell zu ehrender Bürgerinnen und Bürgern freuen würde. Zum Weihnachtsmarkt wird zeitgleich ein großes Tanzturnier in der Petersberghalle stattfinden. Hier fanden zur Organisation und Entspannung der Verkehrs- und Parksituation Gespräche mit dem Veranstalter (Dance Society) und dem Ordnungsamt statt. Da die Petersberghalle ab Sommer 2020 in die Sanierung gehen soll, laufen bereits Alternativplanungen zum Gau-Odernheimer Markt. Es ist auch davon auszugehen, dass die Fußball-Hallenturniere und die Fastnacht nicht in der Halle stattfinden können. Aufgrund von Verzögerungen der Vergabe bei der Verwaltung laufen die Baumkontrollen erst jetzt an (anstatt September). Für die Bearbeitung und Behebung des Wasserschadens in der Alzeyer-Neben-Straße / Kirchgasse soll nun zur rechtlichen Unterstützung der Gemeinde ein Rechtsanwalt beauftragt werden und am Regenrückhaltebecken an der Bahnstraße / Freiherr-von-Stein-Str. werden in den nächsten Wochen Rodungsarbeiten durch den ZAR durchgeführt.
Heiner Illing
Ortsbürgermeister
Grünflächen ohne Gift
8.12.2019
Gau-Odernheim will als erste Gemeinde im Kreis pestizidfreie Kommune werden und verzichtet auf Unkrautvernichter.
Von Jan Haugner - Allgemeine Zeitung Alzey vom 07.12.2019
GAU-ODERNHEIM. Zurzeit klaffen noch viele Löcher in Rheinland-Pfalz, wenn man sich die Karte der pestizidfreien Kommunen auf der Seite des Bunds für Umwelt- und Naturschutz Deutschland (BUND) anschaut. Im ganzen Landkreis gibt es nicht eine, ein Vakuum, in das jetzt Gau-Odernheim vorstoßen will. In seiner jüngsten Sitzung hat der Ortsgemeinderat beschlossen, sich um eine solche Zertifizierung des BUND zu bewerben. Um diese zu erreichen, müssen Orte und Städte idealerweise auf Pestizide, mindestens aber auf Glyphosat auf ihren Grünflächen verzichten. Die Vision der Petersberggemeinde geht aber noch weiter. Künftig sollen hier verstärkt insektenfreundliche Pflanzen gesetzt und nur noch ein bis zwei Mal im Jahr gemäht werden.
Diesen Beschluss fasste der Rat in der vergangenen Woche einstimmig. Eingebracht wurde die Idee zur Bewerbung von Henrik Illing. Der Sohn des amtierenden Ortschefs sitzt seit Mai für die SPD im Gemeinderat. “Ich fand das eine sehr interessante Idee und die Fraktion war auch sofort begeistert”, erklärt der 22-Jährige. Zusätzlich zu den Vorgaben soll die Gemeinde auf ihren Flächen künftig auf jede Art von Pflanzenschutzmitteln sowie Schädlings- und Unkrautvernichter verzichten. Während die vier Gemeindearbeiter sofort angewiesen wurden, jede Art chemischer Helfer zu meiden, müssen für die anderen Pläne noch einige Hürden genommen werden.
Zuerst will der Gemeinderat Flächen identifizieren, die überhaupt geeignet wären, schließlich kann am Straßenrand nicht einfach auf Mäharbeiten verzichtet werden. Sobald diese Phase abgeschlossen ist, wollen die Gau-Odernheimer dann einen konkreten Aktionsplan ausarbeiten. Dafür haben sie einen günstigen Zeitpunkt gewählt, denn der bevorstehende Winter reduziert ohnehin den Einsatz von Chemie und gibt Zeit zu Planungen für den Frühling. Spätestens dann soll ein Konzept stehen, das dann in die Tat umgesetzt werden kann, verspricht Henrik Illing. Bei der Planung setzt der junge Kommunalpolitiker auch auf die Hilfe auswärtiger Experten. Ein Kontakt zum südhessischen Riedstadt, wo das Projekt bereits umgesetzt wird, steht bereits. Außerdem soll auch das Dienstleistungszentrum Ländlicher Raum (DLR) mit ins grüne Boot geholt werden. Vor allem von den praktischen Erfahrungen will der Gemeinderat profitieren, denn es wird sich einiges ändern bei der Pflege des Ortsbildes. Technische Lösungen müssen gefunden werden, um die chemischen Mittel zu ersetzen und das Unkraut im Zaum zu halten. Dass das auch mal länger dauern könnte, findet Henrik Illing nicht schlimm, schließlich könne durch verstärkten Wildwuchs auf den Grünflächen viel Pflegezeit gespart werden.
Dass die Idee letztlich einstimmig durch den Rat kam, war nicht unbedingt absehbar. Die Landwirte hätten Bedenken gehabt, dass der Name “pestizidfreie Kommune” die Erwartungen an ihre Arbeit steigere, allerdings ist klar definiert, dass die Bezeichnung sich nur auf gemeindeeigene Flächen beschränkt. Vielleicht sei es schlauer, die Bezeichnung in “Insektenfreundliche Kommune” zu ändern, scherzt Henrik Illing – noch eine Chance in der Region Vorreiter zu sein
Gau-Odernheimer Weihnachtsmarkt am 30. November 2019
18.11.2019
Wenn Gau-Odernheim wieder in weihnachtlichem Glanz erstrahlt und auf dem Obermarkt der große Weihnachtsbaum mit tausenden Lichtern blinkt, weiß ein jeder: Weihnachten ist nicht mehr weit. Doch was wären Glühwein, Lebkuchen und andere Leckereien ohne einen Weihnachtsmarkt? Seit 1975 ist der Gau-Odernheimer Weihnachtsmarkt am ersten Adventsamstag weit über die Ortsgrenzen hinaus bekannt. Anfangs als Christkindlmarkt der SPD-Frauen wurde die Idee später vom Gewerbeverein als Weihnachtsmarkt weiter ausgebaut. Inzwischen eine Institution mit seinen zahlreichen Besuchern aus der näheren und weiteren Umgebung. Zum sechsten Mal wird er nun von der Ortsgemeinde ausgerichtet und findet auch in diesem Jahr auf dem historischen Roßmarkt, sowie dem Untermarkt statt. Stimmen Sie sich an etwa 30 Ständen auf die besinnliche Weihnachtszeit ein. Ob weihnachtliche Leckereien oder Weihnachtsbäume, ob Adventgestecke oder Geschenkideen – für jedes Alter und jeden Geschmack ist etwas dabei.
Die Stände und die Krippenausstellung öffnen um 16 Uhr. Ab 17 Uhr unterhalten uns die Kinder von der Kita Regenbogen und um 18 Uhr kommt der Nikolaus. Ab 18:30 Uhr nimmt das Blasorchester Gau-Odernheim die Gäste mit auf eine musikalische Schlittenfahrt und als besonderes Highlight wird ab 19:30 Uhr die “Christmas Cheerleader Show” der LSG Klein-Winternheim ein Feuerwerk an Tanz und Show auf die Bühne bringen. Dazwischen erfreuen die Märchenvorlesungen klein und groß. Wir freuen uns auf Ihren Besuch.
Heiner Illing
Ortsbürgermeister Gau-Odernheim
Rede des Ortsbürgermeisters zum Volkstrauertag 2019
17.11.2019
Wir haben uns hier versammelt, um am heutigen Volkstrauertag gemeinsam den Opfern von Kriegen, Gewaltherrschaft und Terror zu gedenken.
Leider ist dieses Gedenken heute dringlicher als je zuvor…
Volkstrauertag - nach seiner Wiedereinführung nach dem 2.Weltkrieg stellten die damaligen Verantwortlichen diesen Tag in die Erinnerung des Deutschen Volkes an die Toten der beiden Weltkriege.
Den “Toten zweier Kriege an den Fronten und in der Heimat” sollte gedacht werden, aber ebenso an die Opfer der Gewaltherrschaft aller Nationen.
1918 endete der erste Krieg, bei dem das Töten industrialisiert wurde, bei dem erstmals hochtechnische Massenvernichtungswaffen und Giftgas eingesetzt wurden und an dessen Ende 17 Millionen Menschen ihr Leben ließen und über 20 Millionen Menschen zum Teil dramatische Verletzungen und psychische Grausamkeiten erleiden mussten.
Dieser Krieg ging als erster Krieg der gesamten Welt in die Geschichte ein.
Ein zaghaftes erblühen der Pflanze der Demokratie wurde bereits wenige Jahre später durch die Stiefel der braunen Horden wieder zertreten.
Schon 21 Jahre später führten uns dann diese braunen Gesellen in die bis dato größte Katastrophe und das größte Verbrechen, dem die Menschheit bisher ausgeliefert war, den 2. Weltkrieg.
Über 60 Staaten wurden direkt oder indirekt mit hinein gezogen.
Am Ende stand die unglaubliche Zahl von 28 Millionen toter Soldaten, 40 Millionen toter Zivilisten und über 6 Millionen toter Juden und anderer sogenannten “unerwünschten Volksgenossen”.
Dies entspricht fast der Größe unserer Bundesdeutschen Bevölkerung! – Ganz Deutschland einfach ausradiert…
All dies angezettelt mit grausamer Effizienz vom verbrecherischen Nazi-Regime und im Namen des Deutschen Volkes.
Wir alle dachten dies ist nun Geschichte und kann nie wieder geschehen.
Aber schauen wir uns nur die letzten Wochen und Monate an.
Im Juni wird der Regierungspräsident Walter Lübcke ermordet – im Oktober dann der Terroranschlag in Halle auf die jüdische Gemeinde – alles durchgeführt von im Internet radikalisierten Nazis…
Waren wir in den vergangenen Jahrzehnten zu sorglos?
Haben wir Signale nicht erkannt?
Versagen unsere gesellschaftlichen Frühwarnsysteme?
Kein normaler Mensch, so dachten wir, zumal in der Mitte Europas, würde sich je ernsthaft für die Hinterlassenschaften des Nationalsozialismus wieder begeistern.
Gedenken an Holocaust und Antisemitismus erstarrte in Ritualen und Mahnmalen.
Seitdem hat sich die Erinnerung an das “Dritte Reich” und seinen Vernichtungswahn offenbar glatt geschliffen und relativiert.
Es ist richtig, dass sich Geschichte nicht wiederholt.
Aber was wir gegenwärtig erleben, lässt dies in einem anderen Licht erscheinen.
Auf einmal werden im Reichstag wieder rassistische und antisemitische Phrasen gedroschen.
Aber warum – woher kommt dieser brutale Wandel des Gesellschaftsbildes – wohin driften wir ab?
Um es mit den Worten von Winston Churchill zu sagen: “Demokratie ist die schlechteste aller Regierungsformen - abgesehen von all den anderen Formen, die von Zeit zu Zeit ausprobiert worden sind.”
Den meisten von uns geht es deutlich besser als noch vor 20, 30 oder 40 Jahren.
Existenzielle Gründe, unserem bewährten demokratischen System, dem vielleicht besten der Welt, zu entfliehen, gibt es nicht.
Und Krieg kennen die allermeisten heute nur noch aus Erzählungen und aus den Medien…
Ja viele dachten sogar, dass wir nun in einer Welt ohne Hass und Gewalt leben würden.
Antisemitische Parolen, Phänomene wie die Reichsbürger, der Serienmord des NSU waren aus unserer Sicht entweder Taten von Sonderlingen oder Außenseitern.
In den neuen Bundesländern kommt hinzu, dass dort zu DDR-Zeiten alles Faschistische dem Kapitalismus zugeordnet worden war.
Der Arbeiter- und Bauernstaat fühlte sich immun. Jüdische Gemeinden existierten so gut wie gar nicht.
Unsere Gesellschaft wird nicht nur von völkischem Denken und Überfremdungsängsten bedroht, was sich der rechte Rand unseres Parteiensystems nicht nur zunutze macht, sondern massiv befeuert.
Wir müssen aufpassen, dass sich der gesellschaftliche Zusammenhalt über die Verteidigung gemeinsamer Werte definiert und nicht nur über Äußerlichkeiten oder Sieg und Niederlage im Sport.
Was sich hier fast täglich als besonders gefährliches Werkzeug entpuppt, ist das Internet.
Dort darf man beleidigen, erniedrigen, töten – alles digital und virtuell, höchst selten mit Konsequenzen.
Hier leben viele in ihrer eigenen Blase, in ihrer eigenen Welt und Wut. Auch der Todesschütze von Halle.
Wo war da die soziale Kontrolle? Jemand, der Waffen selbst bastelt, Handgranaten sammelt und vier Kilogramm Sprengstoff im Kofferraum spazieren fährt, muss doch auffallen.
Doch man muss gar nicht soweit gehen. In Oppenheim wurde vor wenigen Tagen ein Mensch zur Angriffsfläche brutalster Diskriminierungen, nur weil seine geschlechtliche Ausrichtung nicht ins Weltbild verblendeter ewig gestriger Zeitgenossen passte.
Was keimt da noch und wo? Vielleicht sogar hier mitten unter uns?
Wenn uns das Leben in unserem Staat lieb und teuer ist, wenn wir wollen, dass es lebenswert bleibt, dann müssen wir alle - jeder - solche Brandherde erkennen, bekämpfen und die Schwachen schützen.
Jeder an seinem Platz.
Jeder jeden Tag ob bei der Arbeit, beim Sport oder in der Kneipe.
Wenn wir uns dies zu Herzen nehmen, wenn wir auf Äußerungen wie: “Das wird man doch wohl mal sagen dürfen…” mit dem Hinweis reagieren “Dass man dies eben NICHT mal nur so sagen darf”, wenn wir konsequent Hass- und Schmähkommentare im Internet anzeigen, dann haben wir den ersten Schritt zur erfolgreichen Verteidigung unserer Demokratie und Freiheit getan.
Aber lassen Sie mich auf die aktuellen Ereignisse und den heutigen Gedenktag zurückkommen.
Unsere Gedanken sind bei allen Opfern und deren Angehörigen des Terrors und der Willkür in Europa und in der Welt.
Aber auch bei allen anderen, die heute in Not oder auf der Flucht sind.
Im Namen der Ortsgemeinde Gau-Odernheim haben wir diesen Kranz niedergelegt.
Wir gedenken allen Toten und Opfern der beiden Weltkriege und des braunen Terrors.
Wir gedenken allen Toten und Opfern aller Kriege bis zum heutigen Tag.
Wir gedenken allen Toten und Opfern von Terror und Willkür, ob von
staatlicher oder nichtstaatlicher Gewalt, bis zum heutigen Tag.
Ich möchte allen Beteiligten zur Durchführung der Gedenkfeier meinen Dank aussprechen. Dank an Frau Liesel Poss und den VDK, der wie keine andere Organisation in der Tradition des Volkstrauertages steht. Dank an die musikalische Umrahmung durch Herrn Franz Josef Schefer. Dank an die Fahnenabordnungen der Vereine. Dank an Ralf Krämer für die Solo Trompete.
Ich danke Ihnen!
Heiner Illing
Das älteste Kleidungsstück im Ort…
11.11.2019
… gab es bei der jüngsten Veranstaltung “Kunst und Krempel” des Geschichtsvereins zu bestaunen. Während normalerweise verschiedene Gäste Exponate aus den unterschiedlichsten Themengebieten mitbringen, um diese bewerten zu lassen, drehte sich diesmal die gesamte Veranstaltung um eine Familie und deren Erinnerungsstücke. Zunächst stellte “Metzgermeister Philipp Weber” die Geschichte der seit Jahrhunderten ortsansässigen Familie Scheuer dar, die – ursprünglich katholisch – in den Kriegswirren des 17. Jahrhunderts aus dem bayrischen Grafenwiesen nach Rheinhessen verschlagen wurde. Neben – evangelischen – Pfarrern konnten Braumeister, Gastwirte und Landwirte in den vier Zweigen des Familienstammes im Ort nachverfolgt werden. Zahlreiche Bilder der ehemaligen Wirtschaft “Zum Adler” oder der “Schloßschänke” am alten Burgturm regten die Zuschauer im prall gefüllten Partnerschaftsraum des Rathauses zu Diskussionen an. Der Höhepunkt des Abends war neben hochwertigen Reservistenkrügen und -pfeifen jedoch das originale Brautkleid der Anna Maria Pinger, die 1848 Ludwig Scheuer ehelichte. Dieses makellos erhaltene Exponat hatte Jutta Schubert geb. Scheuer dem Geschichtsverein übereignet und es fand ausnahmslos staunende Anerkennung im Publikum. Ausgestellt an einer Schaufensterpuppe und ergänzt mit einem über 100 Jahre alten Brautschleier, zeigte es im wahrsten Sinne des Wortes “Geschichte zum Anfassen”. Abgerundet von der bebilderten Entwicklung der Brautmode in den vergangenen Jahrhunderten, mündete die Veranstaltung in einen gemütlichen Teil mit langen und produktiven Diskussionen, sowie mehreren Ankündigungen historischer Exponate für die folgenden Veranstaltungen der Reihe in den nächsten Jahren. (te)
Gau-Odernheimer Rat bringt B-Plan für Neubaugebiet “Grüner Weg II” auf den Weg
18.10.2019
Bei der letzten Ratssitzung stand u.a. die Beratung und Beschlussfassung zum Bebauungsplan “Grüner Weg II” auf der Tagesordnung. Zunächst durfte Bürgermeister Heiner Illing aber die zahlreichen Zuschauer begrüßen. Aus deren Reihen kam auch die Anfrage, wie es mit den Stellplätzen und der Stellplatzordnung aussieht und ob man Anlieger nicht “zwingen” könnte diese auch zu nutzen. Der Bürgermeister musste hierzu mitteilen, dass auch er diese Problematik kennt, es aber keine rechtliche Maßnahme gibt Besitzer von Garagen und Stellplätzen zu zwingen, diese auch zu nutzen. Das Ordnungsamt soll aber verstärkt den ruhenden Verkehr kontrollieren, um Parksünder entsprechend zur Verantwortung zu ziehen. Ein weiterer älterer Zuschauer fragte nach, ob die Müllabfuhr nach Wiederumstellung auf manuelle Beladung nicht wieder die alten Routen abfahren könnte, da dies eine Entlastung besonders bei Menschen mit Bewegungsproblem darstellen würde. Dies wird nun über die Kreisverwaltung geprüft.
Bei der letzten Sitzung wurde nichtöffentlich 3 Bauanträgen und einer Nutzungsänderung einer Scheune zugestimmt und die Wahrnehmung des Vorkaufsrechts für ein Grundstück an der Selz beschlossen.
Frau Schössel vom Planungsbüro WSW stellte den Planentwurf für das Neubaugebiet “Grüner Weg II” vor. Hier sollen insgesamt ca. 70 Bauplätze entstehen, wobei auch der Bau von Mehrfamilienhäusern ermöglicht werden soll. Änderungswünsche des Rates wie z.B. die Schaffung von Quartiersparkplätzen oder die Verlegung eines Spielplatzes wurden im Vorfeld vom Planungsbüro eingearbeitet. Einstimmig, wie alle weiteren Beschlüsse, stimmte der Rat für die Annahme des Vorentwurfes dieser Planung und die Durchführung des frühzeitigen Öffentlichkeitsbeteiligungsverfahrens. Auf Anregung der FWG soll hierzu noch ein Bürgerinformationsabend erfolgen.
Die Anrichteküche der Kita Regenbogen erfüllt nicht mehr die hygienischen Voraussetzungen. Der Rat beschloss die Küche gegen eine Edelstahlküche zu ersetzen. Die Kosten hierfür werden sich voraussichtlich auf ca. 23.000 € belaufen.
Zu einer größeren Diskussion kam es zum Antrag der FWG-Fraktion den Zuschauern eine bessere Sicht auf Präsentationen und den Rat zu ermöglichen. Die Idee, dies kostenneutral ausschließlich durch Umstellen der Tische und Stühle zu bewerkstelligen, konnte nicht umgesetzt werden, da dann immer entweder Zuschauer oder Ratsmitglieder vom Geschehen ausgeschlossen wären. Aus diesem Grund wurde der Gedanken der SPD-Fraktion aufgegriffen einen zusätzlichen fahrbaren Bildschirm für 1.282 € bei der Fa. Halfer anzuschaffen, um allen Sitzungsanwesenden den Einblick in Präsentationen zu gewährleisten. Zusätzlich soll probeweise die gesamte Bestuhlung um 180 Grad gedreht werden.
Die Gemeinde sollte zur Teilfortschreibung des regionalen Raumordnungsplanes Rheinhessen-Nahe eine Stellungnahme abgeben. Hierbei machte die SPD-Fraktion darauf aufmerksam, dass es zu Unstimmigkeiten im Abgleich der Fassung 2014 und der aktuellen Fassung gab. Außerdem wurde der Grundsatz “Innenentwicklung vor Außenentwicklung” abgeschwächt. Der Rat beschloss der Teilfortschreibung mit Hinweis auf die Unstimmigkeiten und der Forderung der Innenentwicklung wieder Priorität zu gewähren, zuzustimmen.
Die Wahl des Umlegungsausschusses musste wiederholt werden, da es in diesem Ausschuss im Gegensatz zu den vergangenen Wahlperioden nur noch einen Stellvertreter geben darf. Gewählt ist nun Obervermessungsrat Mathias Klemmer als Vorsitzender, Stellvertreter Ltd. Vermessungsdirektor Werner Langner, sowie Erhard Meier (Karsten Tiegs), Thomas Merker (Claus Besser), Isabelle Merker (Ernst Schad), Nicole Breiden (Stephanie Weidmann) und Georg Müller (Rainer Lehn).
Bei den Mitteilungen und Anfragen berichtete Bürgermeister Heiner Illing, dass der Gau-Odernheimer Markt wieder ein großer Erfolg war, der Einheimische aber auch tausende Besucher zum Festgelände lockte und vor allem ohne Zwischenfälle und Gewalt gefeiert wurde. Auch bedankte er sich nochmals bei allen Beteiligten für die Unterstützung und Teilnahme. Die Gemeinde hat beim Land einen Investitions-Stock-Antrag für die Sanierung des Friedhofes über 655.000 € und für die Aussegnungshalle über 260.000€ gestellt. Der Kommunalrabatt vom EWR beträgt 1.136€. Zum Schluss wies er noch darauf hin, dass die VG mitteilte, dass sich die kalkulierten Sanierungskosten für die Petersberghalle mittlerweile auf 4,7 Mio € belaufen. Momentan sei von Seiten der VG geplant, dass die Halle in der Zeit von Sommer 2020 bis Frühjahr 2021 für die Sanierung geschlossen wird.
Heiner Illing
Ortsbürgermeister
Von Steghaus und Jungfernturm
3.10.2019
Es war schon eine illustre Schar, die sich da am Marktsamstag vor dem Burgturm in Gau-Odernheim versammelte: mehr oder weniger lustig gewandete Bürger und Pilger tummelten sich vor der ehemaligen Zugbrücke der Burg. Um die Zeit bis zur Eröffnung des Jahrmarktes zu überbrücken, lud sie Ritterhauptmann André van der Mühl ein, ihn auf einem Kontrollgang entlang der Stadtmauer zu begleiten. Während des Rundgangs konnte Junker Thomas von Odernheim auf die Bedeutung der Befestigungsanlagen, der Mauern, Türme und Tore eingehen. Anhand mitgebrachter “Gemälde” konnten sich die Besucher auch ein Bild jener Anlagen machen, die im Laufe der Jahrhunderte den Kriegen bzw. der Schaffung von Neubauflächen geopfert wurden. Während der Führung gab es neben Daten, Fakten und Anekdoten so manche Szenen zu bestaunen. So konnte man am Untertor erfahren, wieso Odernheimer Zecher Köngernheimer Wirtschaften mochten oder am “Jungfernturm” das Klagen der Müllersfrau erleben, die von ihrem Geliebten geschwängert worden war. Der Wächter vom Obertor erläuterte eindrucksvoll, was der “Eigen” war und wieso die Bäcker des Ortes sich vor ihm in Acht nehmen mussten. Auch ein Taschendieb konnte überführt werden, die Ritter übergaben ihn dem Wärter des “Bleichenturms”, womit die Sicherheit der Marktbesucher garantiert werden konnte. Nach zwei ereignisreichen Stunden traf die bunte Gruppe mit den Besuchern auf dem Festplatze pünktlich zur Markteröffnung ein, um sich stärken und laben zu können. (te, Bild: Günter Petri)
Bald Standesamtsaußenstelle in Gau-Odernheim?
2.10.2019
Bei seiner zweiten Sitzung beschäftigte sich der Gau-Odernheimer Gemeinderat unter anderem mit der Bewerbung zur Bereitstellung von Räumlichkeiten als Außenstelle des Standesamtes der VG. Aufgrund vermehrter Anfragen von Bürgern und Veranstaltern zu diesem Thema beschloss der VG-Rat vor einiger Zeit eine Ausschreibung zu starten. Grundvoraussetzung für eine Bewerbung ist u.a. Barrierefreiheit, ein separater zugänglicher Raum, Licht und Heizung sowie Parkplätze. All dies ist im Rathaus gegeben. Außerdem berichtete Bürgermeister Heiner Illing, dass immer wieder Anfragen bei ihm eingehen, ob man sich im Rathaus trauen lassen kann. Der Gemeinderat beschloss einstimmig (ebenso wie alle weiteren Beschlüsse), dass sich die Gemeinde mit dem Ratssaal als Außenstelle des Standesamtes bei der Verbandsgemeinde bewirbt. In der Einwohnerfragestunde wollte eine Bürgerin wissen, wie der Sachstand zum Wasserschaden in der Kirchgasse ist. Hier berichtete der Bürgermeister, dass die Bodenuntersuchen ergaben, dass bis auf Höhe des katholischen Pfarrheims der Unterbau der Straße zwischen einem Meter und 20 Zentimetern ausgetauscht werden muss. Aufgrund der komplexen Gemengelage wurde die VG beauftragt dies nun in die Hände eines erfahrenen Rechtsanwaltes zu geben und die weiteren Schritte einzuleiten. Im nichtöffentlichen Teil der letzten Sitzung wurde einem Bauantrag und vier Bauvoranfragen zugestimmt. Die Spende der AWO in Form von Kinderfahrzeugen für €1.251,49 wurde angenommen – hierzu nochmals herzlichen Dank! Für das Außengelände des neugebauten Kindergartens werden zwei Mähroboter incl. Induktionsschleifen für €4.500 bei der Firma Freund in Partenheim gekauft und die Fa. Baucontrol in Bingen erhielt für €7.925 den Auftrag in der Brunnenstraße, Mehlgasse und Silvanerstraße eine Bodenuntersuchung durchzuführen um der Ursache der sich lösenden Pflastersteinen auf den Grund zu gehen. Zum Ende teilte Bürgermeister Heiner Illing noch mit, dass die VG-Umlage für 2019 €1.236.499 beträgt, der I-Stockantrag für die Sanierung des Friedhofes gestellt wird, wobei €657.000 auf das Gelände und €260.000 auf die Aussegnungshalle entfallen. Einen Antrag der FWG für eine bessere Sicht der Zuschauer auf Präsentationen lehnte der Sitzungsdienst der VG wegen Formfehlern zwar ab, der Rat beschloss aber trotzdem die Installation eines Bildschirms zur Verbesserung dieser Situation zu prüfen.
Heiner Illing
Ortsbürgermeister
Straßenfest “Am Bahnhof” in Gau-Odernheim
1.10.2019
Die kleine Straße “Am Bahnhof” in Gau-Odernheim hatte sich für ihr großes Fest mächtig herausgeputzt. Ein Festzelt, Handwerksstände und ein Café, sowie Getränke-und Essensstände boten den circa 600 Besuchern, welche der Einladung gefolgt waren, ein ungewöhnliches Programm. Die Führungen von Thomas Ehlenberger, der in der Gewandung eines Reichsbahnsekretärs den Besuchern vor und im ehemaligen Empfangsgebäude die wechselvolle Geschichte des Gau-Odernheimer Bahnhofs erzählte, waren jedesmal ausgebucht. Im Foyer ergänzte Jürgen Gläser die geschichtsbegeisterten Besucher mit original Ansichtskarten der ehemaligen Reichsstadt. Dank moderner Audiotechnik konnten die Besucher mehrmals eine Dampflokomotive, welche mit enormer Lautstärke “durch den Bahnhof” fuhr, genießen.
Jürgen Harbut zog mit seiner Zauberschmiede Kinder und Jugendliche in seinen Bann und ließ sie nach Herzenslust am offenen Feuer das Eisen schmieden. Auch Bildhauermeister Rainer Knußmann entfachte bei den Kindern nach dem Motto “Trau dich!” große Leidenschaft beim Behauen von Sandsteinen. Bei Künstlerin Ellen Löchner druckten sich die Besucher große Bogen Geschenkpapier selber im Siebdruckverfahren.
Am Buchbinderstand stellten sich die Besucher kleine Büchlein her und ließen sich von Buchbinder Martinus Janssen zeigen, wie um 1600 n.Chr. Bücher gebunden wurden. Im Bahnhofsgebäude befindet sich die Handbuchbinderei “Buchwerkstatt Rheinhessen”, die mit vielen Ehrengästen ihr 25jähriges Bestehen feierte und den Anstoß zu diesem bunten Treiben gegeben hatte. Ein raffinierter Cocktailwagen, Volkerbräu vom Faß und vier junge Jazzmusiker machten den Abend zu einer einzigartigen Feiermeile. Ein großes Dankeschön gilt den Anwohnern der Straße “Am Bahnhof” für dieses sehr gelungene Event, welches sie mit viel Freude, einem eigenen Motto: “Nächster Halt am Bahnhof” und privatem Engagement auf die Beine gestellt haben.
Handwerkskammerpräsident Hans-Jörg Friese ehrt die silberne Jubilarin Buchbindermeisterin Christine Merkel-Köppchen, Inhaberin der Buchwerkstatt Rheinhessen, mit der bronzenen Anstecknadel des Handwerks.
(Text: Christine Merkel-Köppchen, Fotos: Jan Merkel)
Seniorenausflug führte ins Kloster Maria Laach
26.9.2019
Einen vollbesetzten Bus durfte Bürgermeister Heiner Illing beim diesjährigen Seniorenausflug der Ortsgemeinde Gau-Odernheim begrüßen. Zunächst führte die Fahrt über den Hunsrück an den Laacher See. Dort stand Besichtigung und Führung im Kloster Maria Laach an. Eine Filmvorführung über die über 900-jährige wechselvolle Geschichte stimmte die Reisegruppe zunächst darauf ein, was wenig später unter fachkundiger Führung eines Mönchs und einer Mitarbeiterin des Klosters mit eignen Augen gesehen werden konnte. Die sechstürmige Klosterkirche, das Laacher Münster, beeindruckte mit der gewölbten Pfeilerbasilika. Wer es bis zur Krypta schaffte, konnte sich ein Bild davon machen, wie es einmal in unserer Peterskirche auf dem Petersberg aussah. Vor allem der prachtvolle Westeingang, dem sogenannten Paradies (in dieser Art einzigartig nördlich der Alpen) und dem 1859 restaurierten Kreuzgang aus dem Anfang des 13. Jahrhunderts macht diesen Kirchenbau einzigartig. Sie gilt als eines der schönsten Denkmäler der romanischen Baukunst aus der Salierzeit in Deutschland. Aber auch der Blick hinter die Kulissen mit den Wirtschafts- und Handwerksgebäuden erstaunte.
Der Höhepunkt war aber eindeutig die Besichtigung des Konventsgebäudes und Refektoriums mit der einzigartigen Bibliothek. Verwinkelte Treppen und Regale über drei Etagen – all dies wirkte fast surreal und mancher Mitreisende stand einfach nur mit offenem Mund da… Nach diesem Abenteuer stand die Stärkung in der Klosterschänke auf dem Programm und vor der Weiterfahrt ging es nochmal in die Klostergärtnerei und -Bücherei. Weiter ging es dann mit dem Bus nach Bad Ems an der Lahn. Hier lud die Ortsgemeinde nochmal zu Kaffee und Kuchen ins Café und wer wollte, konnte noch ein wenig im Kurpark flanieren, bevor der Bus sich wieder auf den Weg in die rheinhessische Heimat machte.
Heiner Illing
Ortsbürgermeister
Partnerschaftsbesuch in Pulnoy
25.9.2019
Am Samstag, den 07. September 2019, starteten 40 Gau-Odernheimer zum jährlichen Besuch der Partnergemeinde Pulnoy / Lothringen. Der Tag begann mit einem kleinen Frühstück, das die Gastgeber für uns gerichtet hatten. Madame Michelle Piccoli, Bürgermeisterin von Pulnoy, Mr. Dominique Capentier, Vorsitzender des Partnerschaftsvereins und Bürgermeister Heiner Illing, wiesen in ihren Ansprachen auf die Bedeutung der langjährigen Partnerschaft in einer schnelllebigen Zeit hin. Die Gastgeschenke waren auf beiden Seiten einfühlsam ausgewählt in Form von Geschenkkörben mit Spezialitäten aus der jeweiligen Region.
Der Ablauf des Besuches konzentrierte sich auf zwei Schwerpunkte: das Fort de Villey le Sec bei Toul und die Kathedrale der bedeutsamen Bischofsstadt.
Das Fort wurde Ende des 19. Jahrhunderts erbaut und bis 1914 regelmäßig modernisiert. Es setzt sich zusammen aus einem Rückzugsbereich, zum Teil unterirdisch, aus mehreren Batterien und einem Zackenwerk an der Ostseite. Beeindruckend sind die Panzerungen und die mächtigen Kasematten, von deren beklemmender Atmosphäre die Besucher einen Eindruck erhielten. Die weiträumige Anlage erschloss sich bei einer Rundfahrt mit der Schmalspurbahn. Bleibt noch zu vermerken, dass das Fort im Laufe der Zeiten von Kampfhandlungen erfreulicherweise verschont blieb.
Der Nachmittag war einer Besichtigung der riesigen gotischen Kathedrale von Toul gewidmet; 1940 durch Kriegseinwirkungen beschädigt, wurde sie bis zur Gegenwart vorbildlich restauriert. Beeindruckend waren das gotische Portal und der mächtige Innenraum mit seinen buntfarbig ausgemalten Fenstern. Im Mittelalter war Toul eine blühende Weinhandelsstadt. Diese Tradition wurde lebendig bei einem gediegenen Drei-Gänge-Menu und einer Weinprobe in einem Gutshof der Umgebung. Alternativ wurden Kaffee und Kuchen gereicht.
Fazit: die französischen Freunde boten ein abwechslungsreiches
Tagesprogramm, das sowohl geselliges Beisammensein als auch
historische Eindrücke ermöglichte. Der Ansatz, die
Begegnungen im Laufe einer fünfjährigen Zeitspanne auf
Tagesfahrten zu beschränken, hat sich mit der regen Teilnahme
beider Seiten bestätigt. Die Partnerschaft (Jumelage) zwischen
Gau-Odernheim und Pulnoy ist auch im 4. Jahrzehnt noch lebendig. So
konnte Bürgermeister Heiner Illing guten Gewissens zum Gegenbesuch
am 05.09.2020 nach Gau-Odernheim einladen.
(Ernst Mayer, Foto: Udo Schleef)
Gau-Odernheimer SPD feiert 100. Geburtstag mit Familiennachmittag
25.9.2019
Bericht der Allgemeinen Zeitung Alzey vom 27.08.2019.
GAU-ODERNHEIM. Stolz präsentierte sich die SPD am Wochenende vom 24. August 2019 Der Ortsverein hatte auch allen Grund dazu, feierte er doch sein 100-jähriges Bestehen. Ganz in Rot erschien der Rossmarkt, auf dem man der bewegenden Geschichte gedachte, aber auch den Blick auf das Hier und Jetzt richtete.
Eigens zum 100. Geburtstag wurde von einem fünfköpfigen Team eine Festschrift herausgegeben, die detailliert auf die Jahre 1919 bis 2019 eingeht. Mit Sekt und Festschrift wurden rund 150 Gäste auf dem Rossmarkt empfangen. “Wir haben für den heutigen Tag ein lockeres Fest geplant, einen Familiennachmittag”, erzählte Heiner Illing, der Erste Vorsitzende des SPD-Ortsvereins. Tatsächlich wurde gerade den Kindern einiges geboten. Unter dem Motto “Wie vor 100 Jahren” hatte man im Hof der angrenzenden Grundschule einen Parcours aufgebaut, den die Kinder bei dem schönen Wetter mit einem Gokart abfahren konnten. Doch auch andere Spiele ließen sich die Organisatoren einfallen, um den Kleinen eine große Freude zu bereiten.
Mehr mit Schule und Bildung dagegen hatte eine umfangreiche Fotoausstellung zu tun, die parallel zu der Feier in der Grundschule zu besichtigen war und die Geschichte des Ortsvereins widerspiegelte. Jeweils mit lokalen Bezügen wurde auf die Gründung in der schwierigen und chaotischen Nachkriegszeit um 1919 eingegangen, dem Parteienverbot in der NS-Zeit sowie auf die Wiedergründung im Oktober 1945. Der SPD-Ortsverein Gau-Odernheim zählt über hundert Mitglieder und ist der drittälteste Verein der Gemeinde. “Gau-Odernheim ist unglaublich wichtig für die rheinland-pfälzische SPD”, sagte Heiko Sippel. Der Landtagsabgeordnete und künftige Landrat moderierte den Nachmittag. Es sei kein Geheimnis, dass die SPD mit Umfragewerten bei 13 Prozent auf Bundesebene in der Krise stecke. “Aber hier in Gau-Odernheim wurde bei der letzten Wahl mit über 50 Prozent die SPD gewählt.” Das sei ein Zeichen, dass in der rheinhessischen SPD-Hochburg vieles richtig laufe. “Die SPD bringt die Gemeinde voran”, fügte Heiko Sippel hinzu. So sei die Ortschaft mit dem großen Neubaugebiet und Vorzeigeprojekten wie dem Blockheizkraftwerk auch ein wichtiger Bestandteil für den Landkreis und die gesamte Region.
Mit der Finanzministerin des Landes, Doris Ahnen, konnte die Jubiläumsfeier weitere Politprominenz vorweisen. Sie überreichte das Parteibuch an das jüngste Gau-Odernheimer SPD-Mitglied Henrik Illing.
Der offizielle Anlass wurde auch genutzt, um verdiente und langjährige Mitglieder des Ortsvereins auszuzeichnen. Insgesamt 23 Ehrungen wurden vorgenommen – mit dabei war auch Landrat Ernst-Walter Görisch für insgesamt 45 Jahre SPD-Treue.
Für den lockeren Rahmen der Veranstaltung sorgte immer wieder Musik. Mit “Superstition” (Stevie Wonder) traf die “Jazz & Rock Unit” der Alzeyer Kreismusikschule gleich zu Beginn ins Schwarze. Die Big Band wusste das Publikum mitzunehmen. Mit Wein, Flammkuchen und Waffeln sowie Gitarrenklängen von Ralf Krämer endete schließlich die Feier.
(Fotos: Udo Schleef)
Im Neubaugebiet kann es losgehen
20.9.2019
26 Grundstücke in Gau-Odernheim erschlossen
Es kann losgehen: Die offizielle Freigabe für die Bauherren zur Errichtung ihrer Eigenheime ist erteilt. “Wir freuen uns sehr, dass es losgehen kann – die Zusammenarbeit war wirklich reibungslos”, sagt Gau-Odernheims Bürgermeister Heiner Illing in Richtung aller Beteiligten an der Erschließung. 26 Baugrundstücke auf 2,3 Hektar, angrenzend an die Grundschule und einen Verbrauchermarkt, können nun bebaut werden.
EWR sorgte für die Erschließung des Gebietes vom Acker bis zur Baureife – inklusive Regenrückhaltebecken, Lärmschutzwand und Straßenbeleuchtung. Auch Glasfasern liegen im Gebiet, um den Anschluss an schnelles Internet zu bieten. “Das Interesse an Telekommunikationsdienstleistungen ist groß”, sagt EWR-Vorstand Udo Beckmann, “es ist eine der Voraussetzungen für ein attraktives Baugebiet.” Ende 2016 hatte er als e-rp-Geschäftsführer und Marcus Wagner die ersten Gespräche mit der Gemeinde geführt und im letzten Jahr den Erschließungsvertrag unterzeichnet.
Enge Abstimmung seit April
Erst Ende April war dann Baubeginn im “Neubaugebiet Vorstadt III”.
Dass es so schnell ging, ist für EWR-Projektleiter Marcus
Wagner der engen Abstimmung zu verdanken: “Wir haben uns
wöchentlich die Zeit für ein Treffen mit der Gemeinde, den
Planern der SIA GmbH und der Baufirma Knebel genommen”,
berichtet er. An alle schicken Beckmann und Wagner ein herzliches
Dankeschön für die gute Zusammenarbeit.
Der Endausbau, mit Pflaster, Asphaltfeinbelag, Straßenschilder oder auch die Begrünung erfolgt nach Fertigstellung von rund 70 Prozent der Gebäude. (EWR)
Gau-Odernheimer Markt vom 27.09.-01.10.
19.9.2019
Kaum ist der Sommer vorbei - schon steht der Gau-Odernheimer Markt wieder vor der Tür!
Bereits seit 1289 wird der Markt in den Mauern der ehemaligen Reichsstadt gefeiert. Auch in diesem Jahr gibt es rund um die Petersberghalle wieder ein umfangreiches Programm.
Los geht es am Freitag um 20 Uhr in der Petersberghalle mit dem Theaterabend des Blasorchesters und dem Stück “Chaos im Bestattungshaus” und etwas später startet im Festzelt die Marktparty mit DJ Illinois.
Der Samstag wird um 14 Uhr mit der Kostümführung des Geschichtsvereins eingeläutet – es geht durch das mittelalterliche Odernheim entlang der Stadtmauer - Beginn am Schloßturm. Um 16 Uhr wird dann der Markt mit dem hochziehen des Kranzes und dem Fassweinanstich unter Begleitung der frischgekürten rheinhessischen Weinprinzessin Romina I. eröffnet. Unterstützt wird das Spektakel vom Gabsheimer Musikverein. Am Abend geht`s dann ins Zelt zur Livemusik mit der “Oldieband”. Hier kann man bei Musik der 50er, 60er und 70er abtanzen – übrigens rockte diese Band mit ihrer stimmgewaltigen Sängerin bereits im letzten Jahr beim Musikantennachmittag das Festzelt…
Der Sonntag startet wie gewohnt um 10 Uhr mit dem Erntedankgottesdienst. Anschließend öffnet der Handwerker- und Bauernmarkt mit über 90 Ständen seine Pforten. Uralte Lanz, Bautz und sonstige Schlepper und Geräte aus Gau-Odernheim und Umgebung werden ebenfalls ab 11 Uhr vom Geschichtsverein bei der historischen Traktorenschau präsentiert. In der Halle gibt es den musikalischen Frühschoppen mit dem Blasorchester und ab 12 Uhr das Marktessen des TSV. Nonstop geht es mit dem Musikantennachmittag und den Musikvereinen Mauchenheim und MVR Dienheim weiter. Mehr als Tradition ist das AWO-Café ab 14:30Uhr in der Petersberghalle. Der Sonntag klingt dann mit der Band “Rhoihessisch Herzblut” im Zelt aus. Wer möchte kann hier nochmal schwofen oder das Tanzbein schwingen.
Die Familienolympiade mit Familienspielen mit Sarah Adam sowie den Kinderzauberern und Ballonkünstlern “Jutta und Stefan” leiten ab 14 Uhr den Montag ein. Für das leibliche Wohl wird mit Marktmenue (Markklößchensuppe, Rindfleisch und Meerrettich) ab 17:30 Uhr gesorgt. Hierzu sind im Rathaus im Vorverkauf Coupons erhältlich. Für die richtige Partystimmung sorgen dann nochmal die “Lucky Lips”.
Den Abschluss bildet am Dienstag ab 14:30 Uhr der Seniorennachmittag mit Bremser und Zwiebelkuchen.
Kommen Sie vorbei, genießen Sie die Markttage und unterstützen Sie die Vereine und Aussteller mit Ihrem zahlreichen Besuch.
Alle Veranstaltungen – außer dem Theaterabend – sind “Eintritt frei”.
Heiner Illing
Ortsbürgermeister
Empfang für Prinzessin
18.9.2019
Gau-Odernheim ehrt neue rheinhessische Weinmajestät Romina Paukner
Allgemeine Zeitung Alzey vom 18. September 2019
GAU-ODERNHEIM (sna). Ob das Gau-Odernheimer Rathaus wohl jemals in solch royalem Glanz erstrahlt ist? Ortsbürgermeister Heiner Illing ist sich sicher: Nein. Kein Wunder, hatten sich am Montagabend gleich alle fünf frisch gekrönten rheinhessischen Weinmajestäten auf den Weg in die Petersberggemeinde gemacht. Schließlich galt es, der neuen Weinprinzessin Romina Paukner zu huldigen – zu diesem Anlass hatte ihr Heimatort bereits zwei Tage nach der offiziellen Wahl zum festlichen Empfang geladen. Rund 60 Besucher – darunter ehemalige Weinmajestäten sowie Vertreter aus der Politik, den Vereinen, der Landwirtschaft und Wirtschaft – versammelten sich zu Paukners Ehren im proppevollen Rathaus. In seiner Ansprache lobte Heiner Illing den Mut der neuen Prinzessin, sich vor 700 Gästen zu präsentieren und einem gewieften Moderator Rede und Antwort zu stehen. Nach einer Präsentation des Image-Films, mit dem sich Romina Paukner vorgestellt hatte, brachte der Ortsbürgermeister seinen Stolz darüber zum Ausdruck, dass seine Gemeinde nun über eine weitere rheinhessische Weinmajestät verfügt. “Und nach 2006 sogar die Zweite aus dem Hause Paukner!” Für Romina sei es direkt von Null auf Hundert gegangen, schließlich habe sie bereits am Sonntag ihren ersten offiziellen Termin in Bodenheim wahrnehmen müssen. Von “mal langsam angehen lassen und reinschnuppern” keine Spur. Natürlich hatte Illing auch an ein Geschenk gedacht, passend zum neuen Amt überreichte er der Weinprinzessin ein spezielles Gau-Odernheim-Glas. “Ich hoffe, es wird dir ein guter Begleiter sein und dich am Ende des Amtsjahres an manch schöne Stunde erinnern.” Für seinen Bauausschuss hatte der Ortschef zudem direkt einen Auftrag: sich mit der Aktualisierung der Stelen an den Ortseingängen zu befassen, auf denen die Namen der Gau-Odernheimer Weinmajestäten verewigt sind. VG-Bürgermeister Steffen Unger brachte in seinem Grußwort die Freude darüber zum Ausdruck, dass es wieder eine rheinhessische Weinmajestät aus der Verbandsgemeinde Alzey-Land gebe und SPD-Landtagsabgeordneter Heiko Sippel ging auf die persönliche Entwicklung ein, die die Krönchenträgerinnen in ihrem neuen Amt erleben werden. Weitere Grußworte sprachen Rheinhessenwein-Vorsitzender Thomas Schätzel und der Vorsitzende des Bauern- und Winzerverbandes Alzey-Worms, Holker Pfannebecker. Und dann war Romina Paukner selbst an der Reihe. Sie verglich den Wahlabend rückblickend mit einem Film, oder besser gesagt, gleich drei Filmen: Action, Komödie und Romantik. Ihr Fazit: “Einfach unvergesslich.” Dabei hatte sie ihre eigene Familie mit ihrer Kandidatur im Februar erst einmal mächtig auf die falsche Fährte gelockt. Als sie im Kreis ihrer Lieben verkündete, etwas mitteilen zu müssen, seien die ersten Reaktionen gewesen: “Du bist schwanger!” und “Ihr werdet heiraten!” Dabei hätten die Paukners doch eigentlich auf die Kandidatur kommen können, schließlich hatte Romina nach eigenen Worten bereits im Jahr 2005 in einem Freunde-Buch prophetische Qualitäten bewiesen. In der Kategorie “Wenn ich einmal groß bin, werde ich ...” hatte die damals Zehnjährige eingetragen: Weinprinzessin...
(Foto: privat)
Gemeinderat hat sich konstituiert
27.08.2019
Bei der ersten Gemeinderatssitzung der neuen Wahlperiode standen u.a. die Wahlen der Beigeordneten auf der Tagesordnung. Zunächst verabschiedete Ortsbürgermeister Heiner Illing die ausgeschiedenen Räte Manfred Brunn, Erich Besser und Heike Schleef von der SPD, Andreas Arnold von der CDU und Helmut Thomann von der FWG. Hierbei stellte er nochmals das ausgewöhnliche ehrenamtliche Engagement heraus, das jeder einzelne in dieses Ehrenamt einbrachte. Nachdem der Bürgermeister die Ratsmitglieder per Handschlag verpflichtete und nochmals auf die besondere Treue- und Schweigepflicht hinwies, wurde auch Heiner Illing vom 1. Beigeordneten Gerd Zibell als wiedergewählter Ortsbürgermeister ernannt. Unmittelbar danach konnte Ralf Krämer als Ratsnachrücker für Heiner Illing verpflichtet werden. Bei der anschließenden Beigeordneten-Wahl kam es zu folgenden Ergebnissen: 1. Beigeordneter: Gerhard Zibell (SPD) 12 Stimmen, Christian Maier (FWG) 7 Stimmen, weitere Beigeordnete: Ernst Schad (SPD) 11 Stimmen, Nicole Breiden (FWG) 8 Stimmen und Renate Volpp (SPD) 11 Stimmen, Stephanie Weidmann (FWG) 8 Stimmen. Somit wurden Gerhard Zibell, Ernst Schad und Renate Volpp in ihren Ämtern bestätigt. Neben redaktionellen Änderungen wurde die Etablierung eines Ältestenrates einstimmig neu in die Hauptsatzung und Geschäftsordnung übernommen. Der Ältestenrat setzt sich aus dem Bürgermeister, den Beigeordneten und den Fraktionsvorsitzenden zusammen und legt u.a die Tagesordnung für die Ratssitzungen fest und beschließt Eilentscheidungen. So soll der Informationsaustausch zwischen der Ortsspitze und den Fraktionen gestärkt werden. Die Reduzierung der Anzahl der Ausschussmitglieder von 10 auf 9 wurde ebenso wie die die vorgeschlagenen Ausschussbesetzungen einstimmig angenommen. In der IG Petersberg wird in den nächsten 5 Jahren die Gemeinde durch Heike Schleef und Christian Maier vertreten sein. Ebenfalls einstimmig beschloss der Rat einen Zuschuss von bis zu 150€ wenn sich Gemeinderatsmitglieder ein Tablet anschaffen, um mit dem von der VG eingeführten Ratsinformationssystem zu arbeiten. Seit der letzten Gemeinderatssitzung im April mussten zahlreiche Eilentscheidungen getroffen werden. Diese betrafen vor allem Bauangelegenheiten, die Sanierung des Gräberfeldes “C” und die Außenanlage für den neuen Kindergarten. Zum Schluss berichtete der Bürgermeister noch von den Beschlüssen des nichtöffentlichen Teils der letzten Gemeinderatssitzung und lud den Rat zur Teilnahme an der Fahrt nach Pulnoy in Frankreich im September ein. Für ihr langjähriges Rats-Engagement wurden Renate Volpp, Georg Müller und Manfred Brunn vom VG-Beigeordneten Hans Jürgen Fischer im Namen des Gemeinde- und Städtebundes geehrt.
Heiner Illing
Ortsbürgermeister
Lieder von langen Beinen und kurzen Amouren
Standing Ovations für musikalische Eskapaden im Gau-Odernheimer Rathaus
05.06.2019
Dass sich der Ratssaal des Gau-Odernheimer Rathauses auch dieses Jahr zum Konzertsaal verwandeln würde, hatte sich offenbar schnell herumgesprochen, denn das Rathauskonzert mit dem Trio “Champagnerperlen” war in Windeseile ausverkauft. Und die Besucher des Abends unter dem Motto “Heute Nacht oder nie – musikalische Eskapaden” sollten ihr Kommen nicht bereuen, denn sie erlebten eine höchst amüsante Revue aus großartig vorgetragenen Liedern, Gedichten und Texten.
Die Mezzosopranistin Barbara Arneke aus Mainz, Tenor Michael Senzig aus Wiesbaden und Lokalmatador Wolfgang Nieß an den schwarz-weißen Tasten und einer singenden Säge widmeten sich dabei mit viel Schwung und feiner Selbstironie den elementaren Fragen zwischenmenschlicher Beziehungen: Wie lernt man sich kennen? Wie verliebt man sich? Und wie wird man sich wieder los? Die “musikalischen Eskapaden” des Abends handelten dementsprechend von langen Beinen und kurzen Amouren, von Liebesfreud und Liebesleid und manch anderen Katastrophen.
Dabei überzeugten die drei hoch professionell agierenden Künstler nicht nur als perfekte Musiker, sondern auch als spielfreudige Darsteller, die sich gerne gegenseitig aufs Korn nahmen und immer wieder unter großem Gelächter das Publikum in die gespielten Szenen mit einbezogen. Besonders Bürgermeister Heiner Illing, der mutig in der ersten Reihe Platz genommen hatte, wurde immer wieder ins Geschehen integriert und bewies seinerseits viel Spontanität und Humor.
Die Auswahl der musikalischen Beiträge umfasste eine abwechslungsreiche Mixtur aus Opernarien (grandios: Barbara Arneke als “Carmen” und Michael Senzig mit Puccinis “Nessun dorma”!), Operettenliedern wie das Duett “Lippen schweigen” oder “Da geh‘ ich ins Maxim” (einen Sonderapplaus erhielt Senzig für seine gekonnte Stepeinlage!) aus Lehárs “Lustiger Witwe”, dazu viele Ohrwürmer aus frühen Tonfilmschlagern wie “Für eine Nacht voller Seligkeit”, “Bel Ami” und “Ich brech‘ die Herzen der stolzesten Frau’n“. Die bekannten Melodien wirkten durch witzige und überraschende Inszenierungen niemals abgedroschen, sondern immer neu und originell. So verwandelte sich ein Evergreen wie “O sole mio” vom Duett zum spannenden Duell, das sich Arneke und Senzig um die Gunst des Publikums lieferte. Dazu passten die trockenen Einwürfe des Pianisten Nieß, wie der, dass er hier zum Handlanger dieser applausgierigen Sängermeute degradiert sei. Weitere Höhepunkte eines rasanten Abends waren die schwarzhumorigen Kabarettchansons von Georg Kreisler (Arneke als männermordende femme fatal in “Bidla Buh”) und Bodo Wartke (köstlich: Nieß vom Klavier aus singend mit “Ja, Schatz!”), die sich mit der endgültigen Lösung von Eheproblemen befassten.
Erfrischende Dialoge, gespielte Szenen, heitere Gedichte und Geschichten verbanden die Musiknummern dabei zu einem kurzweiligen Ganzen, das das Publikum nach einem zweieinhalbstündigen musikalisch-komödiantischen Feuerwerk mit Standing Ovations belohnte. (Sabina Nieß)
(Fotos: Heiner Illing)
Kein leichter Weg
24.5.2019
Auch Eidechsen können Projekt nicht aufhalten: Gau-Odernheim und Hillesheim rücken endlich näher
Von Jan Haugner – Allgemeine Zeitung Alzey vom 18. Mai 2019
GAU-ODERNHEIM. Was lange währt, wird endlich gut – und so kann Helmut Schmitt zum Ende seiner Amtszeit sein wohl effizientestes Projekt feiern. So günstig habe wohl noch nie jemand einen Radweg bekommen, scherzt der scheidende Ortsbürgermeister von Hillesheim. 1999 habe sich das erste Gespräch, das er in seiner neuen Funktion mit dem zuständigen Landtagsabgeordneten führte, um einen Radweg zwischen seiner Gemeinde und Gau-Odernheim gedreht. Am Freitag – 20 Jahre später – konnte er ihn nun endlich eröffnen. Der Kostenpunkt für Hillesheim? Nicht einen Cent, denn der Weg liegt zu 100 Prozent auf der Gemarkung der Nachbargemeinde.
Dass es überhaupt einen Radweg gibt, liegt vorrangig an einem anderen Weg. Denn als sich Gau-Odernheims Ortsbürgermeister Heiner Illing vor Jahren mit dem Projekt beschäftigte, wurde schnell klar, dass das wie geplant nichts wird. Knapp anderthalb Millionen hätte die Umsetzung gekostet, Eidechsen-Umsiedlung inklusive – viel zu viel für die Gemeinden. Und so ruhte der Plan, bis 2015 auf überregionaler Ebene ein Wirtschaftsweg geplant wurde. Dann brauchte es nur noch einen cleveren Vorschlag, an einem Sommerabend im Sportlerheim, und schon war das Fundament gelegt. Warum nicht einen nahe gelegenen Grasweg in diesem Zuge ausbauen? So kam es, dass 2017, 18 Jahre nach Helmut Schmitts erstem Gespräch zum Thema, Antrag und Planung kamen.
Von da an sei das Projekt quasi ein Selbstläufer gewesen, erklärt Amtskollege Heiner Illing. 75 000 Euro kostet der Radweg, der gerade mal 325 Meter zwischen dem neuen und einem alten Hillesheimer Wirtschaftsweg verbindet. Dass die Gemeinde ohne jegliche Beteiligung einen neuen Radweg hat, liegt auch an der Verbandsgemeinde Alzey-Land. Sinnvolle Radwege seien wichtige Projekte, gerade mit Blick auf Infrastruktur und Tourismus, deshalb übernehme die VG immer mindestens zwei Drittel der Kosten, erklärte Bürgermeister Steffen Unger. Somit bleiben nur knapp 25 000 Euro für Gau-Odernheim, das noch zusätzlich für die Beschilderung aufkommen muss. Hillesheim muss indes noch einige Ausbesserungen am eigenen Wirtschaftsweg leisten.
Landratskandidat Heiko Sippel lobte in seiner Ansprache, ebenso wie Steffen Unger, die neue Verbindung. Dass nicht nur zwei Gemeinden, sondern auch die Landkreise Alzey-Worms und Mainz-Bingen näherrücken, sei eine wichtige Sache. Nicht zuletzt komme die Verbesserung der Infrastruktur auch der Umwelt und dem Tourismus zugute.
(Foto: Udo Schleef)
Gau-Odernheimer Senioren auf Besuch in Lothringen
23.5.2019
Mit dem bisher wahrscheinlich niedrigsten Altersdurchschnitt folgten die Gau-Odernheimer Seniorinnen und Senioren der Einladung der französischen Partnergemeinde Pulnoy in Lothingen. Ausschlaggebend hierfür war, dass die rund 30 Senioren erstmals von etwa 20 Schülerinnen und Schülern der Realschule “Am alten Schloss” begleitet wurden. Zunächst führte die Fahrt über Saarbrücken, wo man sich nach rheinhessischer Lebensart mit einem herzhaften Frühstück mit Fleischwurst und Weck stärkte, durch die lothringische Landschaft zum Empfang in den Senioren-Begegnungsraum nach Pulnoy. Nach dem obligatorischen Empfang mit Austausch der Gastgeschenke gingen die Schüler zur örtlichen Mittelschule, um dort erste Kontakte zum Schüleraustauch im Herbst zu sammeln, während die Senioren zum Mittagessen ins Flughafen-Restaurant in der ehemaligen Abfertigungshalle des Flughafens Nancy eingeladen waren. Anschließend durfte sich die Reisegesellschaft in Pulnoy von einer gelungenen innerörtlichen Renaturierungsmaßnahme mit Hochwasserschutz ein umfassendes Bild machen. Mit dem gemeinsamen Nachmittagskaffee von Senioren und Schülern neigte sich ein schöner gemeinsamer Tag viel zu schnell dem Ende und alle freuen sich schon auf das Widersehen im nächsten Jahr in Gau-Odernheim.
Heiner Illing
Ortsbürgermeister
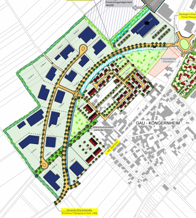
Bürgerinformation zur Machbarkeitsstudie “Entlastung Gau-Köngernheim”
14.5.2019
Mehr als 60 Bürgerinnen und Bürger durfte Ortsbürgermeister Heiner Illing zur Vorstellung und Diskussion der Machbarkeitsstudie zu einer Entlastungsstraße für Gau-Köngernheim begrüßen. Zunächst erläuterte er die Historie. So wird eine Umgehung bereits seit mehr als 30 Jahren in den Flächennutzungsplänen vorgesehen. Außerdem besteht für den Bereichs des Dreiecks von Alzey kommend zwischen L406, ehemaliger Bahntrasse und Ortsrand Gau-Köngernheim ein gültiger Bebauungsplan für ein Gewerbegebiet “Mühlenbauer Weg”. Nachdem nun bekannt wurde, dass das Land in den nächsten Jahren die L406 zwischen Framersheim und Gau-Köngernheim ausbauen wird, beschloss der Gemeinderat eine Machbarkeitsstudie zum Bau einer Entlastungsstraße in Auftrag zu geben. Diese Studie stellte nun Wolfgang Strey vom Planungsbüro WSW vor. Die Ortsumgehung soll nach dem Entwurf des Planungsbüros WSW vom Verkehrskreisel an den Einkaufsmärkten in einem großen nordwestlich ausgerichteten Bogen oberhalb des Friedhofes bis hinter den Ortsausgang Richtung Framersheim führen. Sie wäre etwa 765 Meter lang und würde aktuell etwa fünf Millionen Euro kosten. Die stillgelegte Bahnstrecke würde dabei weitgehend als Naturbiotop erhalten bleiben. Zur Gegenfinanzierung könnte entlang dieser Strecke ein begleitendes Gewerbegebiet entstehen. Wobei realistisch mit einem Bedarf von nur etwa der Hälfte (Kreisel bis Höhe Biebelnheimer Weg) ausgegangen wird. Diese Fläche würde auch etwa der Fläche des bestehenden B-Plan Bereiches “Mühlenbauer Weg” entsprechen. Bei Bedarf und Interesse der Grundstückseigentümer könnte im Bereich zwischen westlichem Ortsrand (Friedhof) und Planstraße ein Mischgebiet mit Wohnungen realisiert werden. Bei dieser Planung hat das Land signalisiert, auf einen Teil des Ausbaus der L406 zu verzichten und stattdessen diese neue Straße anzubinden, sofern die Straße schneller fertiggestellt als der Ausbau umgesetzt wird. In der anschließenden Diskussionsrunde wurden vor allem von landwirtschaftlicher Seite Bedenken vorgetragen. So befürchtet man Flächen- und Naturverlust sowie eine Zunahme des Verkehrs. Außerdem wurden verschiedene Verkehrsberuhigungsmaßnahmen ins Spiel gebracht. Vor allem von unmittelbaren und mittelbaren Anliegern der Alzeyer Straße wurde ins Feld geführt, dass eine Verkehrsberuhigung zu keiner Verminderung der bis zu 6.500 Fahrzeugen pro Tag führen wird und mit der Umsetzung und Realisierung nicht früh genug begonnen werden könnte. Hier wurde der tägliche Kampf mit Lärm, Abgasen und ständiger Gefahren ins Feld geführt und keinerlei Verständnis für eine Verhinderung einer Planung aufgebracht. Mit dem Projekt werden sich der Gemeinderat und seine Ausschüsse in den nächsten Jahren auch in öffentlichen Sitzungen intensiv befassen “Es ist noch nichts entschieden, nichts festgelegt, der vorliegende Plan ist ein Entwurf, eine Studie, ein Leitfaden, wie es gemacht werden kann”, so Ortsbürgermeister Heiner Illing zum Abschluss.
Heiner Illing
Ortsbürgermeister
Gau-Odernheimer Gemeinderat stimmt Flächennutzungsplan “Windenergie” zu
7.5.2019
Eine recht überschaubare Tagesordnung hatte der Gau-Odernheimer Gemeinderat bei seiner letzten Ratssitzung abzuarbeiten. Zunächst ging es um die Zustimmung gemäß Gemeindeordnung zum Teilflächennutzungsplan “Windenergie” der VG. Dies wurde notwendig, da Flächen aus der ursprünglich vorgesehenen Fassung wegen Naturschutzbelangen herausgenommen wurden und Verfahrensfehler vorlagen. Der Gemeinderat stimmte einstimmig zu, auch wenn die Gau-Odernheimer Gemarkung ist von diesem Teilflächennutzungsplan nicht betroffen ist, da hier keine Windkraftgebiete liegen. Als nächstes ging es nochmals um die Vergabe der Straßennamen für das Neubaugebiet “Vorstadt III”. Bei der letzten Sitzung wurden bereits die Namen Kästner- und Lindgren Straße festgelegt. Allerdings zeigte sich bei der Vergabe der Hausnummern, dass es Zuordnungsschwierigkeiten bei den benannten Straßenverläufen gibt. Dies wurde nun durch den einstimmigen Beschluss der Änderung der Abgrenzung der Straßennamen sichergestellt. Zum Schluss teile Bürgermeister Heiner Illing noch mit, dass am 24. April die Einweihung der Phase 2 der Maßnahmen am Petersberg, am 24. Mai das Rathauskonzert und am 22. August die konstituierende Sitzung des neuen Gemeinderates stattfinden, sowie der Anteil der Gemeinde an der Oberflächenentwässerung 88.453€ beträgt. Außerdem berichtete er über den Planungsstand zur Sanierung der Petersberghalle und den Verlauf der Bürgerinformation zur Machbarkeitsstudie “Gau-Köngernheim”. Im nichtöffentlichen Teil der letzten Ratssitzung wurde einer Bauvoranfrage in der Albiger Straße zugestimmt und ein Bauantrag in der Mainzer Straße abgelehnt.
Heiner Illing
Ortsbürgermeister
Aus dem Gemeinderat
2.4.2019
In seiner 32. Sitzung am 14.03.2019 hat der Gemeinderat der Ortsgemeinde Gau-Odernheim im öffentlichen Teil folgende Beschlüsse gefasst, die hiermit bekannt gemacht werden:
Zu TOP 1 Einwohnerfragestunde lagen keine Einwohnerfragen vor.
Unter TOP 2 Friedhofsplanung Gau-Odernheim, beschloss der Rat einstimmig die Unterstützung des vorgestellten barrierefreien Friedhofskonzeptes des Büros Gutschker und Dongus und die Beauftragung des Büros zur Erstellung einer Kostenermittlung dafür.
Im TOP 3 stimmte der Rat einstimmig dafür, auf der Grundlage der vorgenannten Kostenermittlung für den Friedhof in Gau-Odernheim einen Zuwendungsantrag aus dem Investitionsstock 2020 zu stellen.
Unter dem TOP 4 wurden die Straßennamen für das Neubaugebiet “Vorstadt III” vergeben. Der Rat stimmte einstimmig für Lindgrenstraße und Kästnerstraße.
Auch die Abstimmung des Rates zu TOP 5a und b Ergänzungssatzung “Albiger Straße Nord-West” gem. § 34 Abs. 4 und 3 BauGB a.) Offenlegungsverfahren gem. § 3 Abs. 2 Bau GB und Beteiligungsverfahren der Börden und sonstigen Trägern öffentlicher Belange gemäß § 4 Abs. 2 BauGB und b.) Satzungsbeschluss gemäß § 10 Abs. 1 BauGB war einstimmig (ein Ratsmitglied rückte gem. § 22 GemO ab). Nur bei der Stellungname der Landwirtschaftskammer Rheinland-Pfalz wurde mit 15 Ja-Stimmen und 1 Gegenstimme dafür gestimmt.
Im TOP 6 wurde wiederum einstimmig dafür gestimmt einen Antrag auf Förderung nach der Kommunalrichtlinie 2019 für die Ortsentwicklung und die Umstellung der Straßenbeleuchtung auf LED zu stellen.
Im TOP 7 wurde der Planungsvergabe an das Ing.-Büro IG Weiland für die Straßenreparaturarbeiten in der Mehlgasse, Brunnenstraße und in der Silvanerstraße einstimmig zugestimmt.
Auch einstimmig wurde die Anschaffung von 7 Geschwindigkeitsanzeigegeräten für die Gemeinde Gau-Odernheim beschlossen.
Bei den Mitteilungen lud der 1. Beigeordnete G. Zibell zur Teilnahme am Dreckwegtag am 16.03.2019 ein. Er teilte mit, dass am 23.03.2019 um 16.00 Uhr in der Petersberghalle ein Treffen der Blaskapellen stattfindet und die Kosten für die Petersberghalle in 2018 für die Ortsgemeinde Gau-Odernheim 65.330,08 Euro betragen haben. Außerdem informierte er über den neuesten Stand zum Wasserschaden in der Kirchgasse/Alzeyer-Nebenstraße, dass die Kreisverwaltung den Haushalt 2019 genehmigt hat und teilte die Beschlüsse aus dem nichtöffentlichen Teil der Gemeinderatssitzung vom 31.01.2019 mit.
Gerhard Zibell
1. Beigeordneter
Der Dreck muss weg
18.3.2019
Unter dieser Maxime hatte die Gemeinde Gau-Odernheim am vergangenen Samstag zum Dreck-Weg-Tag eingeladen und die über 50 Teilnehmer schwärmten mit den entsprechenden Gerätschaften aus, um auch in diesem Jahr wieder für eine saubere Umwelt zu sorgen. In Vertretung des verhinderten Bürgermeisters leitete der 1. Beigordnete Gerd Zibell die Aktion und begrüßte vor dem Bauhof der Gemeinde die Teilnehmer.
“Es ist mittlerweile Tradition im Frühjahr jeden Jahres klar Schiff zu machen und ich bin froh darüber dass so viele unserer Einladung gefolgt sind. Das Thema Sauberkeit ist ja mittlerweile allgemein in den Blickpunkt gerückt und obwohl unsere Gemeindearbeiter als auch die Rentnerbande regelmäßige Müllsammlungen durchführen, ist doch eine grundlegende Aktion nötig, da es leider immer noch Zeitgenossen gibt, die die Umwelt vermüllen”, so der 1. Beigeordnete bei seiner Begrüßung.
Nach gut drei Stunden war die Säuberungsaktion beendet und der bereit stehende Container füllte sich mit Altreifen, Metallstangen, Plastikkanistern, Holzplatten, einem Waschbecken und großen Mengen an Papier, Plastikfolien sowie Styroporplatten. Achtlos weggeworfene Kaffee-Becher, Verpackungen, Zigarettenschachteln, Flachmänner, Dosen, Flaschen, Hundekotbeutel sowie jede Menge Tempotaschentücher und ähnliches mehr sorgten allenthalben für Erstaunen bei den fleißigen Müllsammlern. Ein besonderes Problem stellten die eingesammelten Weinbergspfähle (rheinhessisch Stickel) mit Teerspitzen dar, die als Sondermüll gesondert entsorgt werden müssen.
Während des gemeinsamen Mittagessens, zu der die Gemeinde eingeladen hatte, bedankte sich Gerd Zibell nochmals für die erfolgreiche Durchführung des Gau-Odernheimer Dreck-Weg-Tages und hob besonders lobend die Teilnahme der Jugendfeuerwehr hervor, die neben Ratsmitgliedern, Gemeindearbeitern, Vereinsmitgliedern, Bürgerinnen und Bürgern aller Altersgruppen sowie zahlreicher junger Leute, teilweise mit ihren Eltern, die größte Gruppe darstellten.
Stolz auf das gemeinsam erreichte Ziel, die Umwelt von allerlei Müll zu entsorgt zu haben, ließen sich alle Teilnehmer das von Gemeindesekretärin Petra Reichert mit Unterstützung von Birgit Hechtelberger organisierte herzhafte Essen, die kühlen Getränke sowie Kaffee und Kuchen schmecken.
In geselliger Runde und mit konstruktiven Diskussionen über die Erlebnisse der vorangegangenen Sammelaktion klang der arbeitsreiche Vormittag mit der Erkenntnis aus: Nächstes Jahr sind wir wieder dabei, wenn es heißt “Der Dreck muss weg”. (mb)
(Foto: Günter Petri)
“70 Jahre Glockenweihe”
12.3.2019
Zahlreiche Besucher waren der Einladung des Geschichtsvereins gefolgt und lauschten den Ausführungen über die bewegte Geschichte des Gau-Odernheimer Kirchengeläuts in den vergangenen Jahrhunderten. Zunächst gab es allgemeine Informationen über die Vorgehensweise beim Guss von Glocken und die Bedeutung des weltlichen und kirchlichen Geläuts. Im Anschluss wurde auf die 4 Glocken des alten romanischen Kirchturms eingegangen, der 1799 während eines Gottesdienstes einstürzte und 7 Männer erschlug. Auch der heutige, 1833 fertiggestellte Kirchturm mit seinen 3 Glocken war vom Schicksal gebeutelt, wurde des Öfteren vom Blitz getroffen und verlor mehrfach sein Geläut, durch Zerspringen von Glocken oder durch Einschmelzen in beiden Weltkriegen. Umso beeindruckender war die Tatsache, dass bereits 1949 also kurz nach Kriegsende und direkt nach der Währungsreform durch eine enorme Spendenbereitschaft der Bevölkerung wieder neue Glocken angeschafft werden konnten. Etliche Aufnahmen einer beeindruckenden Prozession, die die Glocken 1949 vom Bahnhof zur Kirche geleiteten, boten Stoff für interessante Gespräche, die auch im Anschluss an den offiziellen Teil noch fortgeführt wurden. (te)
Konzept für Friedhofssanierung vorgestellt
10.3.2019
Zu einer Bürgerinformation mit Diskussionsmöglichkeit über die geplante Friedhofssanierung hatte die Ortsgemeinde eingeladen. Zunächst erläuterte die Planerin Martina Blank vom Ingenieurbüro Gutschker und Dongus aus Odernheim/Glan den Wandel der Bestattungskultur. So sind deutschlandweit mittlerweile die Urnenbestattungen die mit Abstand meist gewählte Bestattungsform. Dem soll das mit dem Friedhofsausschuss abgestimmte Konzept Rechnung tragen. Vor allem soll aber die Barrierefreiheit im Vordergrund stehen. Zum Beispiel könnten alle Hauptwege gepflastert und im Rahmen der Sanierung der Aussegnungshalle die Toilette behindertengerecht ausgebaut werden. Auch soll die Zugangssituation und das Eingangsbild von der Bahnstraße aus grundlegend verändert werden. Auf die Aussegnungshalle soll ein alleeartiger Hauptweg zulaufen. Zugleich sollten neue Bestattungsformen wie Baum-, Rasenfeld- und Kolumbarienbestattung oder ein “Weg der Erinnerung” angeboten werden. In der Diskussion mit den Bürgerinnen und Bürgern zeigte sich, dass der aufgezeigte Weg eine breite Zustimmung findet und die in den letzten beiden Jahren forcierte Abräumung abgelaufener Gräber als sehr hilfreich angesehen wird, aber weiter konsequent vorangetrieben werden muss. Auch dass in den “älteren” Bereichen eine Wiederbelegung, bzw. Verlängerung nur noch in absoluten Ausnahmefällen erlaubt werden sollte, wurde allgemein bejaht. “Da das Projekt im höheren 6-stelligen Euro-Bereich liegt, kann all dies nur mit Fördergeldern geschehen” so Bürgermeister Heiner Illing. Im nächsten Schritt müsste nun der Gemeinderat dem vorgestellten Konzept zustimmen und einen I-Stock-Antrag stellen. Da die Antragsfrist für 2020 aber bereits im September 2019 endet, müsste dies bereits in der nächsten Gemeinderatssitzung geschehen. Unabhängig hiervon wird in den nächsten Tagen die beauftragte Sanierung von Gräberfeld “C” (Gräber an der Bahnstraße) starten. Außerdem soll noch in diesem Jahr neben der Aussegnungshalle ein Baumbestattungsfeld entstehen.
Heiner Illing
Ortsbürgermeister
Seltenes und Kurioses…
19.2.2019
… gab es wieder beim jüngsten Stammtisch des Geschichtsvereins zu bestaunen. Unter dem Motto “Kunst und Krempel” wurden Fundstücke aus Keller und Speicher präsentiert und bewertet, wobei seitens der Themen wieder eine enorme Bandbreite abgedeckt wurde. So gab es neben der heute noch häufig zu findenden Volksgasmaske – welche in den 20er und 30er Jahren – in allen europäischen Ländern zum Hausrat gehörte, einen heute raren “Tier-Luftschutzkasten” nebst Hintergrundinformationen zu bestaunen. Die Entwicklung von Spielzeugfiguren wurde anhand eines desolaten Elastolinindianers im Vergleich zu moderneren Exemplaren aus Gummi und Plastik gezeigt. Erstaunen löste auch die Radfahrkarte mit Steuerstempeln von 1909 aus. Auch spontan aus der Tasche gezauberte Kuriositäten – wie der Damenschuh als Streichholzbehälter, der Stapel-Henkelmann oder der Kreppelschneider - konnten aufgrund der regen Zuschauerbeteiligung eingeordnet werden. Wie gewohnt zogen sich die Diskussionen und Gespräche bei einem Gläschen Wein noch bis spät in die Nacht hin. (te)
Gau-Odernheimer Gemeinderat beschließt Haushalt und stellt Weichen für die zukünftige Entwicklung
11.2.2019
Mit einem umfangreichen Zahlenwerk hatte sich der Gau-Odernheimer Gemeinderat bei seiner ersten Sitzung für 2019 im Rahmen der Haushaltsberatungen zu befassen. So betragen die Erträge des Ergebnishaushaltes 6.051.830 € bei Aufwendungen in Höhe von 5.744.410 €, somit ein Überschuss in Höhe von 307.420 €. Hierbei sind z.B. Aufwendungen für Planungen der Innenentwicklung über 45 T€, Unterhaltung der Gemeindestraßen über 50 T€, Baumpflege über 81 T€ und Unterhaltung des Friedhofes über 18 T€ enthalten. Im Finanzhaushalt stehen Erträgen in Höhe von 5.750.430 € Aufwendungen von 5.288.730 € entgegen. Somit beträgt hier der Überschuss 521.700 €. Geplant sind hier an Investitionen u.a. die Erschließung Vorstadt III für 1,5 Mio € Außengelände Kiga nach dem alten Schloss und die Friedhofsanierung für je 150 T€ und eine Matschschleuse für die Kita Regenbogen für 100 T€. Falls alle Investitionen umgesetzt würden, müsste ein Investitionskredit in Höhe von 337.700 € aufgenommen werden. Da dies aber Erfahrungsgemäß nicht eintritt, ist davon auszugehen, dass dieser Kredit nicht notwendig wird. Die Umlagen (= Abgaben der Ortsgemeinde an Kreis und VG) betragen 2.743.660 €. Um Gau-Odernheim für vorhandene und zukünftige Gewerbetreibende attraktiv zu halten, wird die Gewerbesteuer von 415 auf 395 Punkte gesenkt (entspricht Mindereinnahmen von ca. 18 T€). Alle anderen Steuern und Abgaben bleiben unverändert. Die Überschüsse sollen am Ende des Haushaltsjahres in eine Rücklage für die Petersberghallensanierung überführt werden. Der Haushalt und die Satzung wurden mit 12 Ja-, 5 Nein-Stimmen und 2 Enthaltungen genehmigt.
Das Planungsbüro WSW aus Kaiserslautern stellte die Machbarkeitsstudie einer Entlastung der Gau-Köngernheimer Ortslage vor. Hierbei soll eine Entlastungsstraße in nordwestlicher Richtung entstehen. Entlang dieser Straße wäre die Entwicklung eines Gewerbegebietes möglich. Der Gemeinderat beschloss einstimmig (wie auch alle weiteren Beschlüsse) die Selbstbindung dieses Entwicklungszieles und die Fortschreibung im Flächennutzungsplan “Siedlungsentwicklung”.
Für das Gebiet zwischen der Siedlung Pulnoy-Straße und Grüner Weg wurde der Aufstellungsbeschluss für einen Bebauungsplan “Grüner Weg II” gefasst. Für den neuen Kindergarten wurde ein Wartungsvertrag über 4 Jahre für die Lüftungsanlage in Höhe von € 2.972/Jahr an die Fa. Neyses und Radelli aus Appenheim vergeben. Das Planungsbüro Gutschker&Dongus wurde beauftragt für € 3.667 die Planung eines Baumbestattungsfeldes auf dem Gau-Köngernheimer Friedhof durchzuführen. Vertagt wurde die Entscheidung für das Neubaugebiet Vorstadt III die beiden Straßennamen zu vergeben. Die SPD-Fraktion schlug hier aufgrund der Nähe zur Grundschule die Namen der beiden Kinderbuchautoren Erich Kästner und Astrid Lindgren vor. Die CDU-Fraktion erbat sich hier noch Bedenkzeit bis zur nächsten Sitzung. Angenommen wurde der Vorschlag der VG für die Unterhaltung des Bürgerbusses, der demnächst auch Gau-Odernheim anfahren soll, eine Beteiligung von 20% im Anteil der jeweiligen Einwohnerzahlen vorzunehmen. Für Gau-Odernheim wären dies Kosten von ca. 290 €/Jahr. Die Kreisumlage für das Jahr 2019 ist auf € 1.449.389 festgesetzt. In diesem und im nächsten Jahr sollen alle Brücken, die sich innerhalb der VG in Gemeindehand befinden für ca. 1.000 -1.500€ / Brücke überprüft werden. Hier ist im Anschluss mit umfangreichen Sanierungs- und Reparaturarbeiten zu rechnen. Zum Schluss berichtete noch Ortsbürgermeister Heiner Illing vom nichtöffentlichen Teil der letzten Gemeinderatssitzung, dass eine Baugenehmigung für einen Bauantrag am Bahnhof genehmigt wurde, mit den jugendlichen Verursachern des Schadens am Tisch des Weines eine Kombination aus Schadenszahlung und Sozialstunden vereinbart wurde und mit dem Geschichtsverein ein Nutzungsvertrag für das zukünftige Heimatmuseum im ehemaligen Kindergarten abgeschlossen wird.
Heiner Illing
Ortsbürgermeister
Sehr gut besuchter Bürgerempfang der Gemeinde
22.1.2019
Die Ortsgemeinde Gau-Odernheim hatte zum traditionellen Bürgerempfang in der Petersberghalle eingeladen und neben den geladenen Ehrengästen besuchten auch zahlreiche interessierte Bürgerinnen und Bürger die Veranstaltung. Neben Landrat Ernst-Walter Görisch und Bürgermeister Steffen Unger, durfte Ortsbürgermeister Heiner Illing auch die Bürgermeister Petra Bade aus Biebelnheim und Harald Kempner aus Bechtolsheim, sowie den Landtagsabgeordneten Heiko Sippel unter den Ehrengästen begrüßen.
In seinem Rückblick streifte Illing die Bundes- und Weltpolitik und skizzierte auf, was im vergangenen Jahr alles “abgearbeitet” wurde. Unter allen Projekten war die Einweihung des neuen Kindergartens das herausragendste Ereignis der Ortsgemeinde. Hier dankte der Bürgermeister vor allem Ernst Schad, Thomas Merker und Renate Volpp für die Unterstützung. Mit dem Bau des Radweges nach Biebelnheim wurde ein jahrzehntealter Wunsch realisiert. Zugleich wurde aber auch mit Hilfe der VG der Lückenschluss nach Hillesheim beim Bau des Wirtschaftsweges “Schlittweg” umgesetzt. Auch im Ortskern wurden im Rahmen von Kanalreparaturarbeiten einige Straßenzüge erneuert. Die Skate-Fläche konnte mit Betonelementen für ihre Bestimmung hergerichtet werden. Beim Neubaugebiet Vorstadt III sind alle Bauplätze vergeben und in den nächsten Wochen soll mit der Erschließung begonnen werden. Das Blockheizkraftwerk an der Petersberghalle nimmt nun ebenso Gestalt an, wie die Arbeiten an der Krypta des Petersberges durch die IG Petersberg. Der Kreisel an der Feuerwehr wurde durch die beiden Wappen von Pulnoy und der Feuerwehr erheblich aufgewertet. Im Bereich Friedhof wurde in Gau-Köngernheim zusammen mit dem Bürgerverein eine Fläche für den Grünabfall ausgebaut und in Gau-Odernheim nimmt die Sanierung des Friedhofes langsam Fahrt auf. Die Partnerschaft mit Pulnoy erlebt durch die Umorganisation zu den Tagesfahrten eine Aufwertung. So konnte ein ganzer Bus voll Besucher aus Lothringen sowohl beim Fastnachtsumzug, als auch beim Wildtulpenfest begrüßt werden. Zudem kam noch eine stattliche Anzahl Bürgerinnen und Bürger aus Pulnoy zum Senioren- und Partnerschaftsbesuch. Ein Einbruch der Besucherzahlen war beim Mittelaltermarkt im Mai zu verzeichnen und stellt eine Weiterführung der Veranstaltung in Frage. Ganz im Gegenteil zum Gau-Odernheimer Markt und Weihnachtsmarkt, die wieder eine hervorragende Resonanz fanden. Ein kulturelles Highlight stellt das im Mai veranstaltete Konzert im Rathaus dar. Hier sind mittlerweile in kürzester Zeit die Karten vergriffen.
Dieses Jahr steht laut Bürgermeister Illing vor allem die Erschließung des Baugebietes Vorstadt III und die barrierefreie Umplanung des Friedhofes auf der Agenda. Wobei beim Friedhof noch die Sanierung des Gräberfeldes “C” und die Bereitstellung eines Baumbestattungsfeldes hinzukommen. Die Arbeiten am Petersberg sollen ihre Vollendung finden und die Planungen für eine Entlastung der Gau-Köngernheimer Ortsdurchfahrt vorangetrieben werden.
Bei den Grußworten stellten sowohl Bürgermeister Unger als auch Landtagsabgeordneter Sippel neben den erfolgreich abgearbeiteten Projekten vor allem das funktionierende Ehrenamt und Gemeinwesen in den Mittelpunkt. Hier bescheinigten Sie Gau-Odernheim und seinen Bürgerinnen und Bürgern ein außergewöhnliches Engagement zum Wohle aller.
Bei den Ehrungen dankte Ortsbürgermeister Illing zunächst dem konstruktiv arbeitenden Gemeinderat, sowie den Beigeordneten und Fraktionsvorsitzenden. Für die Spende des Weihnachtsbaums am Obermarkt wurde Friedel Merz und für weitere Tannenbäume in Gau-Köngernheim Eva Stützel gedankt. Des weiteren wurden Beate Ahrens für die Erstellung des Logos der Kita, Christian Stecher für zahlreiche Spenden, Jens Rothenmeier von der Grundschule für die Leitung des “Rotznasenradios”, Andrea und Dittmar Bierle für den Verkauf von Grundstücken an die Ortsgemeinde (der erst den Bau des Radweges nach Biebelnheim ermöglichte), Architekt Diehl für die Planung des neuen Kindergartens und Norbert Hauck für besondere Leistungen im Metzgerhandwerk gedankt. Frank Meiser hat im Fuchsloch in Eigenregie ein verfallenes Wingertshäuschen restauriert und die Feuerwehrmänner Knut Burkhardt, Frank Einsfeld, Jochen Lutz, Andre Mühl, Michael Müller und Andreas Wiechers sind seit 25 Jahren bei der Feuerwehr. Ein besonderer Dank ging an Heiner Becker, der die beiden Wappen am Feuerwehrkreisel legte und an die beiden Herren Marcel Scheid und Alexander Nakonz, die in der Oppenheimer Straße einem Gau-Odernheimer Bürger das Leben retteten. Mit der bronzenen Ehrennadel wurde Jörg Pusch für das seit vielen Jahren kostenlose Aufstellen des Weihnachtsbaums am Obermarkt und Landtagsabgeordneter Heiko Sippel für die Unterstützung der Gemeinde, die erst die Vielzahl von Projekten ermöglicht, ausgezeichnet.
Musikalisch umrahmt wurde die Veranstaltung von der Jugend der Blasorchesters unter der Leitung vom Maike Atzinger. Im Anschluss lud die Ortsgemeinde noch alle Geehrten und Besucher zu lockeren Gesprächen bei einem Glas guten Gau-Odernheimer Wein und einem Imbiss ein.
Heiner Illing
Ortsbürgermeister
(Foto: Günter Petri)
Kinderturnfest “Turnkids erkunden die Welt”:
1000 Kinder erobern Gau-Odernheim
Vom 31. Mai bis 2. Juni 2019 – Ausschreibung ist online!
19.1.2019
Gau-Odernheim ist vom 31. Mai bis 2. Juni 2019 Gastgeber des Kinderturnfestes (KTF) “Turnkids erkunden die Welt”. Dies besiegelten am 15. Januar 2019 Gau-Odernheims Ortsbürgermeister Heiner Illing, VG-Bürgermeister der Verbandsgemeinde Alzey-Land, Steffen Unger, Gerhard Zibell, der 1. Vorsitzende des TSV 1881 Gau-Odernheim, die Turngau-Vorsitzende des Turngau Alzeys, Corby Maar-McLaughlin, Daniela Metz von der Kreisverwaltung Alzey-Worms und RhTB-Präsident Detlef Mann bei der Vertragsunterzeichnung im Ratssaal der Gemeinde.
Zu dieser landesweit größten Breitensportveranstaltung werden bis zu 1.000 teilnehmende Kinder im Alter von 4 bis 12 Jahren erwartet. Viele Mitmachangebote, Shows und Wettkämpfe stehen für die jungen Turnerinnen und Turner, für Besucher und Gäste, die aus ganz Rheinhessen und den angrenzenden Bundesländern anreisen werden, auf dem Programm. “Rechnet man Betreuer, Eltern und Tagesbesucher dazu, werden an diesem Wochenende bis zu 10.000 Sportbegeisterte nach Gau-Odernheim kommen”, schätzt Detlef Mann, Präsident des Rheinhessischen Turnerbundes. Gemeinsam mit dem Landkreis Alzey-Worms, der Verbandsgemeinde Alzey-Land, der Gemeinde Gau-Odernheim, dem Turngau Alzey, dem TSV Gau-Odernheim und den beiden Turnverbänden Pfälzer Turnerbund und Turnverband Mittelrhein wird der Rheinhessische Turnerbund mit seinen Maskottchen, den Turnkids Tim & Trixi, die Gegend rund um die Petersberghalle in ein großes Festgelände verwandeln.
“In Gau-Odernheim kommt alles zusammen: Kultur und Geschichte, Arbeiten und Leben, Landschaften, Orte, Menschen und natürlich der Sport. Ich freue mich deshalb, dass so viele junge Gäste zu uns kommen und bin sicher, dass auch die Bürgerinnen und Bürger und natürlich die Gau-Odernheimer Kinder die zahlreichen Sport- und Bewegungsangebote gerne annehmen werden. Mein Dank im Voraus gilt den Organisatoren des Rheinhessischen Turnerbundes, den Ämtern und Verwaltungen – und vor allem den vielen ehrenamtlichen Helferinnen und Helfern”, sagte Ortsbürgermeister Heiner Illing, dessen Gemeinde große Feste gerne und gut organisiert.
Was die Teilnehmer in Gau-Odernheim erwartet, ist spannend, abwechslungsreich und mit Sicherheit unvergesslich: Drei Tage werden sich die Kinder, ihre Eltern, Besucher und Gäste durch Gau-Odernheim bewegen. Gemeinsam mit Tim & Trixi entdecken sie dabei nicht nur die Gemeinde, sondern tauchen auch in eine ganz neue Welt ein. Häufig das erste Mal auf einem Turnfest unterwegs, viele noch dazu in einer Gemeinschaftsunterkunft. Kostenloses Lampenfieber gibt es vor den Showvorführungen inklusive Glückshormonen und Applaus nach dem gelungenen Auftritt und einem erfolgreich geturnten Wettkampf. Als Zuschauer genießen sie die Kinderturnshow, nachdem am Vorabend bei der gemeinsamen Kinderdisco abgerockt wurde. So viel ist sicher: “Dieses einzigartige Gemeinschaftserlebnis mit dem Verein – ermöglicht durch die vielen engagierten Übungsleiter – bleibt ein Leben lang im Kopf”, sagt Detlef Mann. Die Mitmachangebote werden nicht nur den Turnfestteilnehmern, sondern auch allen Kindern aus und um Gau-Odernheim kostenlos zur Verfügung stehen.
“Dank all dieser Merkmale schaffen es speziell die Kinderturnfeste wie keine anderen Veranstaltungen, diese einzigartigen Gemeinschaftserlebnisse zu vermitteln, die das Vereinsleben so besonders machen. Das kann man nicht beschreiben, man muss es einfach erleben. Dazu kommt, dass Turnen die Sportart ist, die den ganzen Körper ausbildet. Keine andere Sportart bietet Kindern eine ebenso vielseitige und umfassende Bewegungsschulung wie das Kinderturnen”, betonte Corby Maar-McLaughlin, die Vorsitzende des Turngau Alzey. Bewegung ist also auch ein Motor für die geistige und psychosoziale Entwicklung der Kinder, regt die Bildung neuer Nervenzellen im Gehirn an, steigert Wahrnehmung, Aufmerksamkeit, Konzentration, fördert Körperbewusstsein, Selbstvertrauen und das Miteinander in einer Gruppe.
Auch Verbandsbürgermeister Steffen Unger sieht dem Fest mit Freuden entgegen: “Wir als Verbandsgemeinde sind daran interessiert, zwei Faktoren zu unterstützen. Uns ist es wichtig, dass die Menschen hier in Rheinhessen gesund bleiben und wir möchten den Zusammenhalt und die Gemeinschaft fördern. Das Kinderturnfest kann uns bei diesem Vorhaben sehr gut unterstützen.”
Detlef Mann betonte: “Kinderturnfeste auf Gau- und Landesebene sind nach wie vor unsere wichtigsten Veranstaltungen. Wir wollen Kinderturnen in der Öffentlichkeit positionieren und auf dessen Bedeutung für die Entwicklung von Kindern aufmerksam machen!”
Das Programm:
Freitag, 31. Mai; bis 17 Uhr: Anreise und Quartierbezug; 17.30 Uhr:
Eröffnungsfeier; 18 Uhr: Kinderdisco; Samstag, 1. Juni; ab 8
Uhr: Wettkämpfe; ab 10 Uhr: Mitmachangebote und Wettbewerbe; 19
Uhr: Kinderturnshow; Sonntag, 2. Juni; ab 10 Uhr: Mitmachangebote und
Wettbewerbe; 12 Uhr: Tim und Trixi sagen „Tschüss“;
14 Uhr: Landesqualifikation, Rendezvous der Besten und Tuju Stars
Teilnehmer: Kinder zwischen vier und zwölf Jahren Anmeldung: Die
Anmeldung erfolgt online über das DTB-GymNet oder schriftlich
über das Anmeldeformular (gebührenpflichtig/Anforderung per
E-Mail), Meldeschluss ist 15. März. Das Kinderturnfest findet
vom 31. Mai bis 2. Juni in der Petersberghalle und auf dem
TSV-Vereinsgelände statt. Infos unter
www.rhtb.de. (RhTB)
Foto v.l.n.r.: Corby Maar-McLaughlin, Vorsitzende des Turngau Alzey,
Gerhard Zibell, Vorsitzender des TSV 1881 Gau-Odernheim,
RhTB-Präsident Detlef Mann, Steffen Unger, Verbandsbürgermeister
der VG Alzey-Land, Heiner Illing, Gau-Odernheims Ortsbürgermeister,
Daniela Metz, Mitarbeiterin der Kreisverwaltung des Landkreises
Alzey-Worms sowie Stefan Janosch, Mitarbeiter der VG Alzey-Land,
besiegelten am 15. Januar ihre Zusammenarbeit, um gemeinsam ein
erfolgreiches Kinderturnfest auf die Beine zu stellen.
(Foto: RhTB, Carina Partenheimer)
![]()
SiteMap | Impressum | Rechtliche Hinweise
© 2019 Ortsgemeinde Gau-Odernheim
by ScreenPublishing.de
